
Z577 - Projekt domu typu stodoła z centralnie umieszczoną częścią dzienną
- powierzchnia: 129 m²
- cena: od 581 tys. zł
- min wym. działki: 25.6 x 17.5 m
- szer. elewacji: 18.60 m
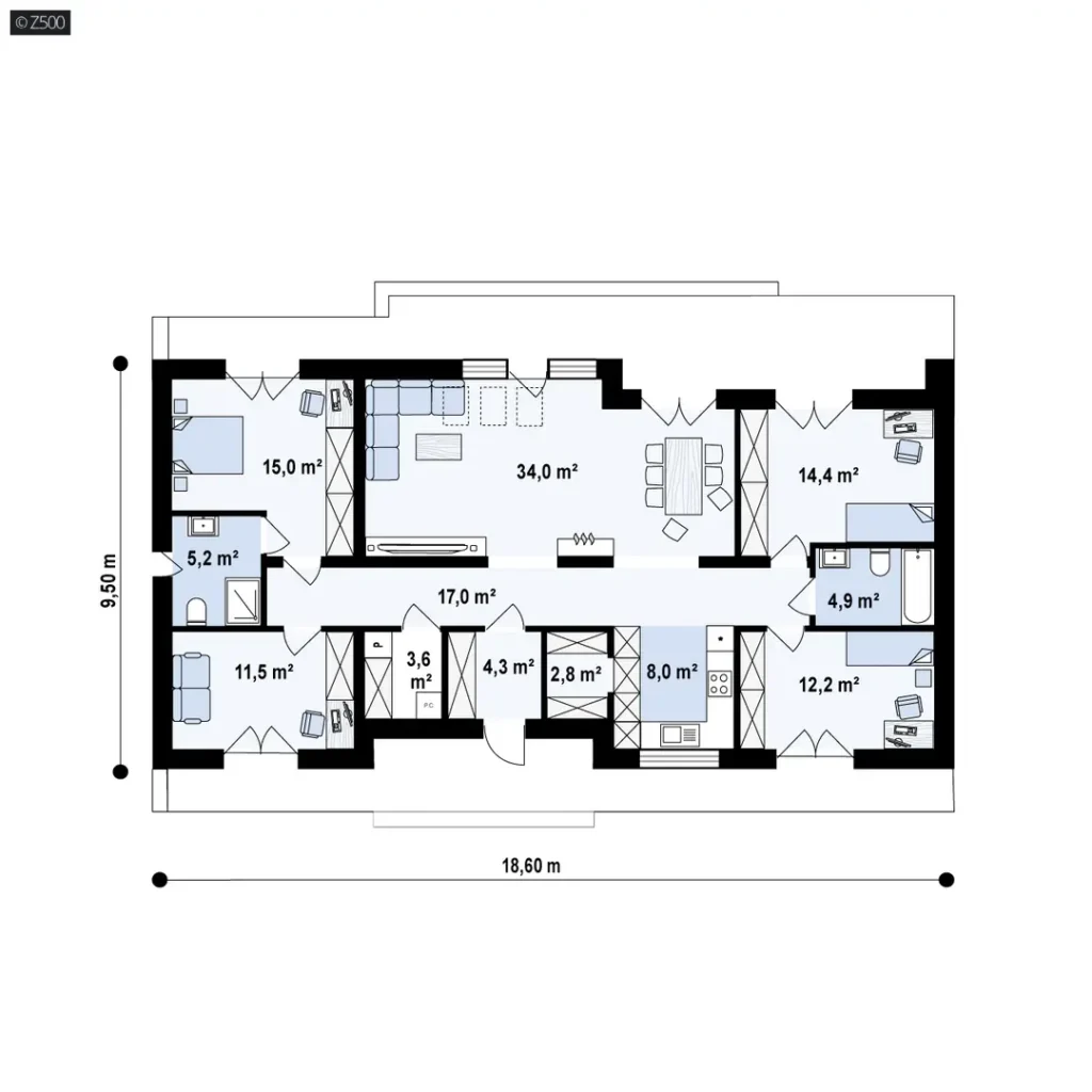
Z577 to nowoczesny dom typu stodoła, zaprojektowany z myślą o rodzinach ceniących unikalną architekturę i centralnie zaplanowaną strefę wspólną. Sercem domu jest imponujący salon połączony z jadalnią o powierzchni blisko 33 m², który dzięki otwarciu na kuchnię tworzy przestronną, jasną przestrzeń o łącznej powierzchni ponad 42 m². Duże, symetryczne przeszklenia w obu częściach budynku nie tylko doskonale doświetlają wnętrze, ale także zapewniają płynne przejście na taras i do ogrodu.
Układ wnętrz został wyraźnie podzielony na dwa skrzydła sypialne, co gwarantuje domownikom maksimum prywatności. W części prywatnej zaplanowano cztery ustawne sypialnie, z których główna sypialnia rodziców posiada własną garderobę. Do dyspozycji mieszkańców oddano dwie funkcjonalne łazienki oraz dodatkowe pomieszczenie gospodarcze, które ułatwia organizację domowych obowiązków.
Projekt wyróżnia się minimalistyczną, a zarazem efektowną elewacją łączącą naturalne drewno z surowym tynkiem. Prosta bryła z dachem dwuspadowym bez okapów podkreśla nowoczesny charakter inwestycji i wpisuje się w aktualne trendy „nowoczesnej stodoły”. Brak barier w postaci schodów oraz przemyślana komunikacja sprawiają, że Z577 jest idealnym rozwiązaniem dla osób szukających wygody i ponadczasowego designu na jednym poziomie.
Wszelkie materiały zamieszczone na stronie internetowej, w tym wizualizacje, renderingi, rzuty, opisy techniczne, zestawienia materiałowe oraz przykładowe realizacje, mają charakter wyłącznie poglądowy, informacyjny i marketingowy. Nie stanowią one wiernego odwzorowania finalnego produktu ani zobowiązania do wykonania budynku w przedstawionej formie.
Prezentowane rozwiązania mogą ulegać zmianom, w szczególności w wyniku optymalizacji projektowej, uwarunkowań technicznych lub indywidualnych ustaleń z Klientem. Wizualizacje mogą zawierać elementy nieobjęte standardowym zakresem realizacji, w tym w szczególności wyposażenie, zagospodarowanie terenu, elementy dekoracyjne, instalacje dodatkowe lub rozwiązania opcjonalne.
Wszelkie informacje dotyczące cen, kosztów, zakresu realizacji oraz parametrów technicznych mają charakter orientacyjny i nie stanowią oferty w rozumieniu art. 66 §1 Kodeksu cywilnego. Zgodnie z art. 71 Kodeksu cywilnego niniejsza strona stanowi zaproszenie do zawarcia umowy.
Parter 129 m²
Działka
Powierzchnia i wymiary
Technologia i konstrukcja
Instalacje
Zakres oferty
- Posadowienie domu na izolowanej termicznie płycie żelbetowej z warstwą termoizolacji wykonanej z płyt XPS o grubości 10 cm na całej powierzchni płyty. Cena płyty jest wyłączona z oferty. Dokładna wycena płyty zostanie przedstawiona po dostarczeniu przez klienta opinii geotechnicznej sporządzonej przez uprawnionego geologa,
- Ściany zewnętrzne wykonane z prefabrykowanych płyt żelbetowych,
- Ściany wewnętrzne wykonane z prefabrykowanych płyt żelbetowych,
- Konstrukcja dachu wykonana z prefabrykowanych drewnianych wiązarów kratowych,
- Pokrycie dachu z blachodachówki, obróbki dachu z blachy,
- Orynnowanie z PCV,
- Okna wykonane z PCV w kolorze białym od zewnątrz i od wewnątrz,
- Termoizolacja ścian zewnętrznych wykonana ze styropianu o grubości 20cm, pokryta siatką i klejem, zabezpieczona masą podkładową z zawartością piasku kwarcowego,
- Drzwi wejściowe stalowe lub PCV,
- Termoizolacja poddasza wykonana wełną mineralną zasypową o grubości około 30 cm,
- Wykończenie sufitów płytami GK w standardzie Q1,
- Instalacja grzewcza oparta na rezystancyjnych matach grzewczych montowanych w warstwach posadzkowych,
- Instalacja elektryczna do 75 punktów wewnątrz budynku, do 8 punktów na zewnątrz, wyprowadzenie przelotów z budynku do podłączenia przyłącza energetycznego. Cena instalacji elektrycznej nie zawiera wykonania przyłącza energetycznego do działki i budynku,
- Instalacja kanalizacji sanitarnej grawitacyjna z rur PVC wyprowadzona na 1 m poza obrys płyty fundamentowej budynku. Cena instalacji wody użytkowej nie zawiera wykonania przyłącza instalacji wodociągowej do działki i budynku,
- Instalacja wody użytkowej z elektrycznie podgrzewanym zbiornikiem akumulacyjnym o objętości do 150 litrów. Cena instalacji wody użytkowej nie zawiera wykonania przyłącza instalacji wodociągowej do działki i budynku,
- Wewnętrzna instalacja mechanicznej wentylacji nawiewno-wywiewnej z rekuperacją,
- Posadzka z jastrychu cementowego o grubości 6cm na warstwie termoizolacji z płyt styropianowych o grubości 10 cm,
- Schody techniczne poddasza.
- Pokrycie dachu z blachy układanej na rąbek, dachówka betonowa lub dachówka ceramiczna,
- Możliwość zaaranżowania przestrzeni strychowej w konstrukcji wiązarów dachowych,
- Montaż stolarki okiennej o podwyższonym standardzie izolacyjności cieplnej w dowolnej kolorystyce wybranej przez klienta
- Montaż rolet zewnętrznych,
- Montaż drzwi zewnętrznych aluminiowych w kolorystyce wybranej przez klienta,
- Montaż parapetów aluminiowych w kolorystyce wybranej przez klienta,
- Zmiana kolorystyki, faktury elewacji,
- Zwiększenie grubości termoizolacji ścian zewnętrznych do 25 cm,
- Rozbudowa instalacji elektrycznej o dodatkowe punkty,
- Dostawa i montaż instalacji fotowoltaicznej wraz z magazynem energii.




